Judul : 6 Sketsa Desain Rumah Minimalis Terbaik
link : 6 Sketsa Desain Rumah Minimalis Terbaik
6 Sketsa Desain Rumah Minimalis Terbaik
Desain Rumah - Berikut ini mazinu akan mencoba berbagi tentang Sketsa Desain Rumah Minimalis Modern dan Terbaik menurut saya, yang sekarang lagi ngetrennya rumah minimalis dengan desaign yang modern. Emh, mazinu sendiri juga sangat suka dengan foto gambar desain rumah minimalis yang ada di google, selain pandangannya sangat menarik juga sangat digemari oleh orang-orang jaman sekarang, apalagi di tahun ini. Mungkin bagi kalian yang suka dengan koleksi rumah minimalis yang keren, silahkan bisa kalian lihat gambar koleksi saya yang saya dapatkan dari mbah gugle. Silahkan disimak 6 Sketsa Desain Rumah Minimalis Terbaik dibawah ini.
Sketsa Desain Rumah Minimalis 1
Desain rumah ini mazinu bilang cukup simple tapi bagus. Dengan ukuran rumah yang tidak begitu besar tapi posisi kamar, ruang tamu, ruang makan, dan tamannya sangat rapi.
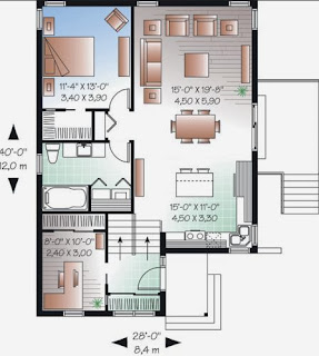
Sketsa Desain Rumah Minimalis 2
Desain rumah ini mempunyai 10 Ruangan yang tersusun rapi dengan desain yang lebih modern dengan ruang keluarga yang cukup luas.
Sketsa Desain Rumah Minimalis 3
Desain interior rumah minimalis ini tidak terlalu banyak ruangan, cuma ruang tamu, ruang keluarga dan dapur dijadikan satu dengan ukuran yang luas. Ini sangat cocok untuk dibuat desain komplek perumahan.
Sketsa Desain Rumah Minimalis 4
Desain rumah minimalis ini lebih cenderung mengutamakan taman yang indah, tamannya ada di depan rumah dan juga ada di depan rumah. Bagi kalian yang suka dengan desain rumah minimalis tapi memiliki taman yang luas bisa jadikan sketsa desain ini sebagai referensi.
Sketsa Desain Rumah Minimalis 5
Gambar desain ini mazinu dapatkan dari google image berbentuk 3D, desain rumah minimalisnya cukup bagus karena susunan ruangannya bisa dibuat dengan rapi.
Sketsa Desain Rumah Minimalis 6
Desain rumah yang terakhir ini merupakan rumah minimalis yang memakan banyak ruangan tapi ruangannya dibuat luas. Dengan taman atau teras yang luas disertai tempat mobil yang luas baik untuk didepan rumah ataupun yang ada di bagasi mobil.
Yah itu tadi ke enam Sketsa Desain Rumah Minimalis Terbaik yang bisa saya postingkan, bagi pembaca setia blog mazinu saya ucapkan terimakasih.
Sketsa Desain Rumah Minimalis 1
Desain rumah ini mazinu bilang cukup simple tapi bagus. Dengan ukuran rumah yang tidak begitu besar tapi posisi kamar, ruang tamu, ruang makan, dan tamannya sangat rapi.
Sketsa Desain Rumah Minimalis 2
Desain rumah ini mempunyai 10 Ruangan yang tersusun rapi dengan desain yang lebih modern dengan ruang keluarga yang cukup luas.
Sketsa Desain Rumah Minimalis 3
Desain interior rumah minimalis ini tidak terlalu banyak ruangan, cuma ruang tamu, ruang keluarga dan dapur dijadikan satu dengan ukuran yang luas. Ini sangat cocok untuk dibuat desain komplek perumahan.
Sketsa Desain Rumah Minimalis 4
Desain rumah minimalis ini lebih cenderung mengutamakan taman yang indah, tamannya ada di depan rumah dan juga ada di depan rumah. Bagi kalian yang suka dengan desain rumah minimalis tapi memiliki taman yang luas bisa jadikan sketsa desain ini sebagai referensi.
Sketsa Desain Rumah Minimalis 5
Gambar desain ini mazinu dapatkan dari google image berbentuk 3D, desain rumah minimalisnya cukup bagus karena susunan ruangannya bisa dibuat dengan rapi.
Sketsa Desain Rumah Minimalis 6
Desain rumah yang terakhir ini merupakan rumah minimalis yang memakan banyak ruangan tapi ruangannya dibuat luas. Dengan taman atau teras yang luas disertai tempat mobil yang luas baik untuk didepan rumah ataupun yang ada di bagasi mobil.
Yah itu tadi ke enam Sketsa Desain Rumah Minimalis Terbaik yang bisa saya postingkan, bagi pembaca setia blog mazinu saya ucapkan terimakasih.





